+27 79 695 0373 aaronmoriarty1@gmail.com

Interior Architecture

Sports Betting

Franchise Outlet 

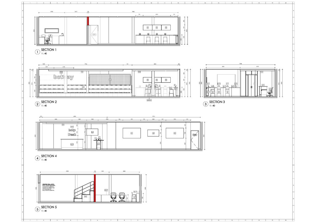
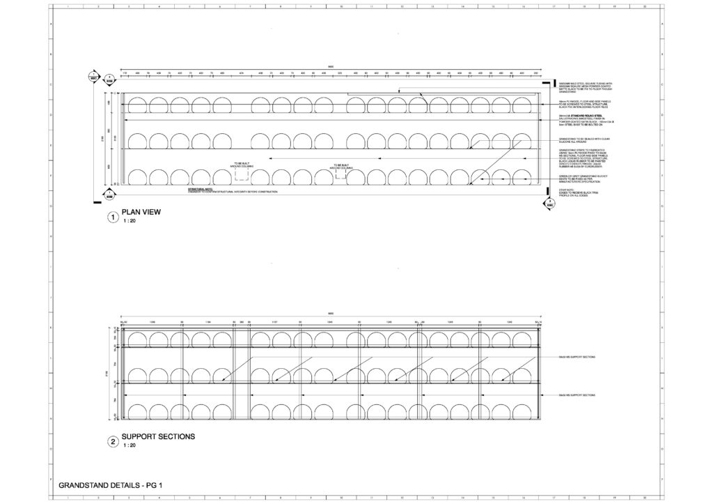
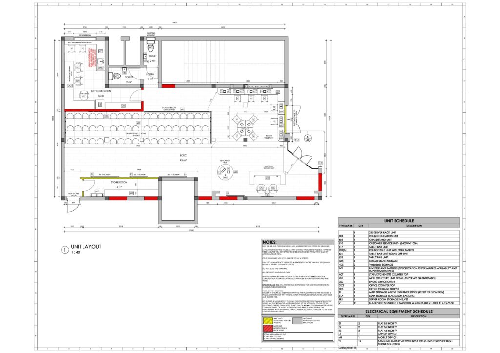
Interior conceptual design and development (detailing and specification) for a sports betting franchise outlet in Africa.

Drawings

Shop Fitting

css.php