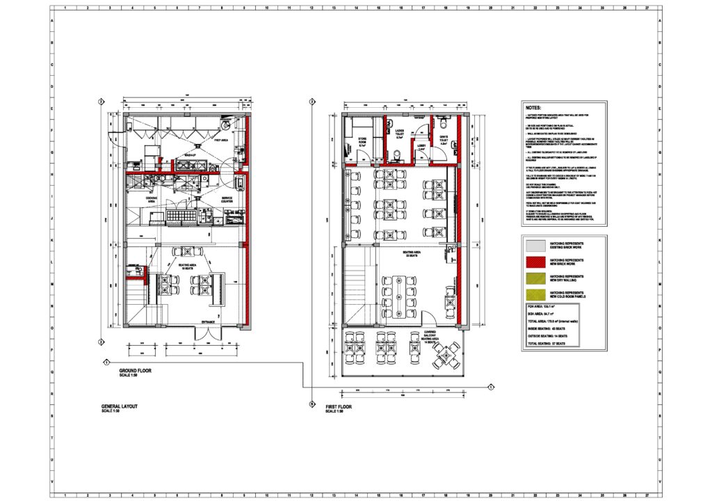
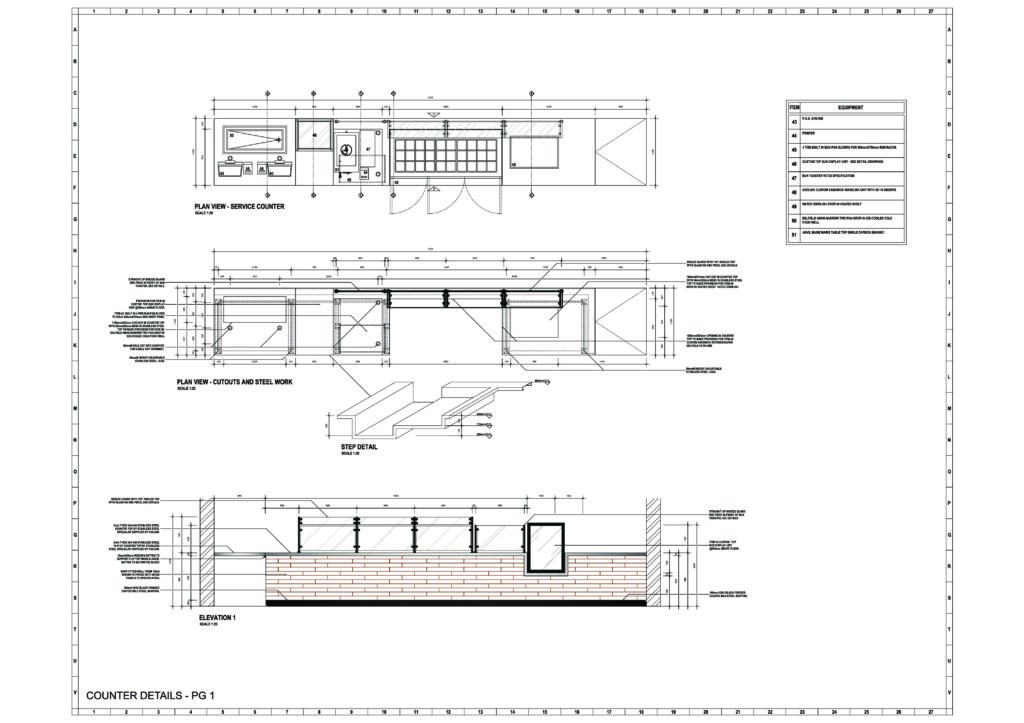
Interior Architecture Fast Food Burger Franchise Interior conceptual design and development (detailing and specification) as well as exterior signage design concept. Gallery Drawings Shop Fitting