+27 79 695 0373 aaronmoriarty1@gmail.com

Interior & Exterior Architecture

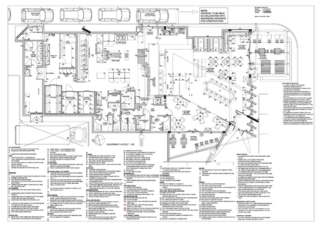
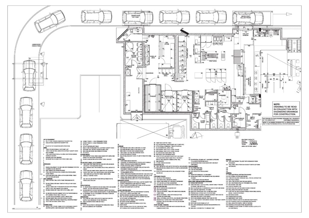
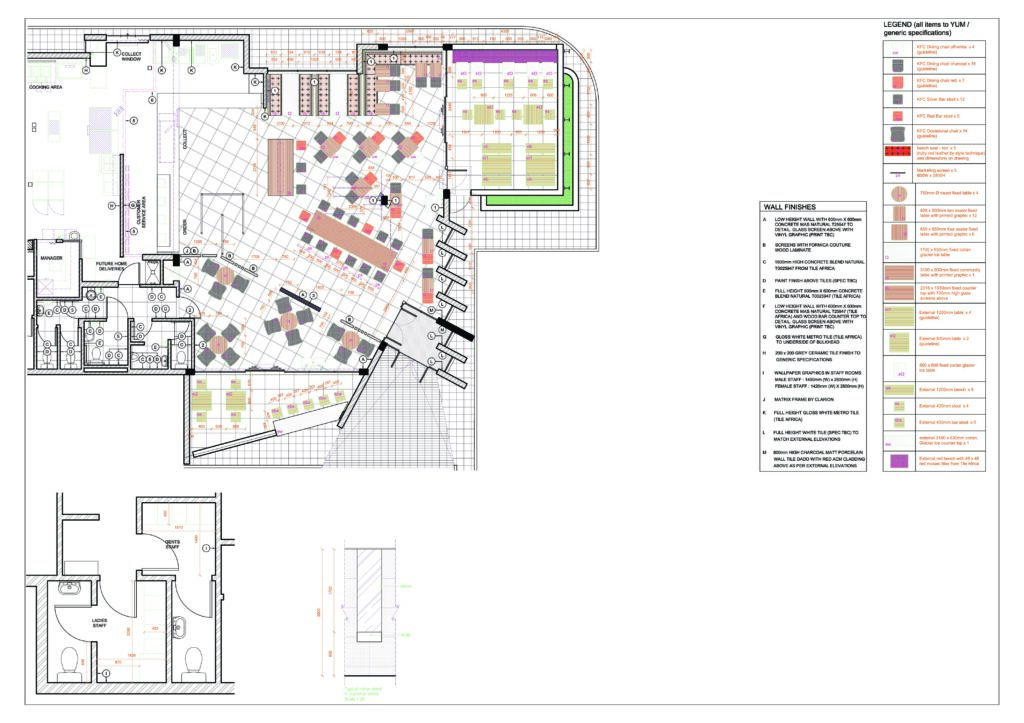
Fast Food Chicken Franchise

Interior and exterior conceptual design and development (detailing and specification) for a Fast Food Chicken Franchise in Southern Africa.

Drawings

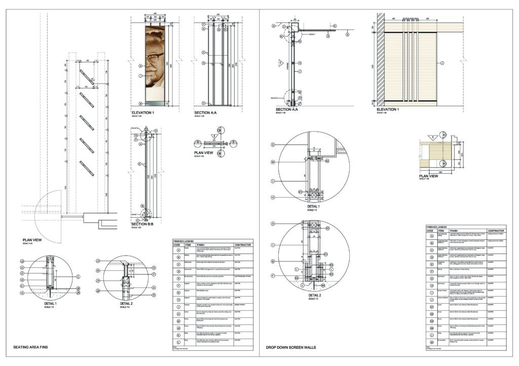
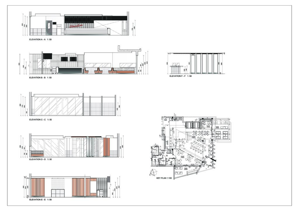
Shop Fitting

css.php